台北市松山區 店面 新中挑高鎮金殿

最近更新:2026-04-10 11:59:18
民生社區張育平《0921884422》 的物件共 118
意者請電 0921884422
  • 總價 : 1.25 (不含車位)
  • 物件編號:聯賣流通:歡迎
  • 明顯目標(路名,巷弄):112年度21世紀不動產全臺個人業績第一名
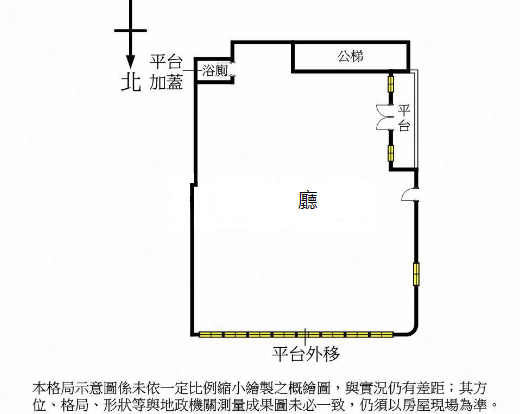
  • 面積:建物:138.38㎡ (約41.86坪)土地:47.8300㎡ (約14.47坪) 參考資料
  • 單價:--
  • 門前路寬:--  米(公尺)
  • 建物規劃:地上 4 層,地下 0 層 本物件所在樓層: 1

    物件QR-Code

    QRcode
  • 建物格局:-- 房 / 1 廳 / 1 衛 -- 陽台
  • 建物座向:朝西
  • 屋齡:44 年 10 月
  • 土地格局:面寬 -- 公尺 縱深 -- 公尺
  • 車位形式:無車位
  • 其他資料

    特色介紹

    請撥服務專線0921884422(電話可直接加LINE)我將盡快為您服務!

    稀有挑高

    邊間(12米林蔭街道)

    民權國小.介壽國中.優質學區

    鄰近民權運動大公園

     

    24小時賞屋網址:www.民生社區.tw

    臺北房屋精選,臺北房屋首選!

    張育平臺北房屋網!

    請撥服務專線0921884422(電話可直接加LINE)我將盡快為您服務!

    松山區房屋精選,松山區房屋首選!

    民生社區房屋,民生社區精選!

    臺北房屋仲介,臺北房屋首選!

    21世紀不動產臺北民生圓環加盟店張育平專業服務

    大臺北金店面!臺北店面首選!

    物件圖片

    電子地圖

    聯絡資料

    聯絡電話
    0921884422
    • 聯絡人:民生社區張育平《0921884422》
    • 電子信箱:zxcv5631462@gmail.com
    • 公司名稱:21世紀不動產民生加盟店《專線0921884422》
    • 證書字號:(100)登字第178875號
    • Line ID:0921884422
    • 服務地址:台北市松山區 三民路117號
    *中文姓名
    *手機
    *Email
    *留言
    輸入確認碼
    物件Q&A